企业名称:重庆西艾恩科技发展有限公司
联系:
电话:023-62625553
邮箱:cqcin@qq.com
地址:重庆市沙坪坝区汇泉路1号附1号15-11

为您提供CCC认证咨询、CQC认证咨询等认证咨询服务和管理咨询服务
全国咨询热线
023-62625553
企业名称:重庆西艾恩科技发展有限公司
联系:
电话:023-62625553
邮箱:cqcin@qq.com
地址:重庆市沙坪坝区汇泉路1号附1号15-11

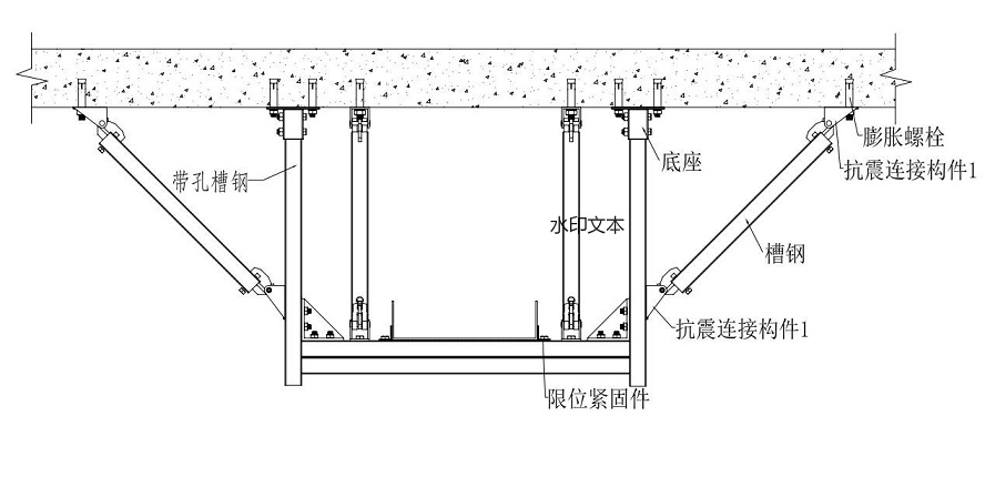
抗震支架(防震支架或弹簧支架)型式检验报告(试验报告)。抗震支架型式检验是按照GB/T37267《建筑机电设备抗震支架》和CJ/T476《建筑机电设备抗震支吊架通用技术条件》实施产品检验,获得型式检验报告和产品认证证书。是生产企业产品型式认定的依据,可以在建筑行业招投标过程中使用,建筑验收必备的合格证明文件。我中心多年从事抗震支架型式检验代理,从前期产品咨询至委托型式检验报告出具与产品认证的全过程服务。
我们常年从事“抗震支架(建筑机电设备用防震支架或弹簧支架)型式检验(试验)代理”工作,提供绿色通道服务和“自愿性产品认证”代理服务工作。实施申请组卷——产品委托型式检验——认证取证——工厂现场能力检查等的全过程服务,迄今协助多家企业顺利获得型式检测报告(试验报告)和产品认证,为生产企业开拓市场,顺利通过住建部门和建委的消防产品验收评价工作保驾护航。
抗震支架检测报告——抗震支架检验报告——抗震支架型式检验报告——抗震支架试验报告——抗震支架型式试验报告——抗震支架产品认证